ГоловнаКаталогПромислові та виробничі об'єктиСпеціалізований модульНавчально-виробниче приміщення
Навчально-виробниче приміщення
Навчально-виробниче приміщення
- Загальна площа50 м2
- Габаритні розміри (ДхШхВ)7320*6060*2900мм
- Висота стелі2700мм
- Артикул товару:233
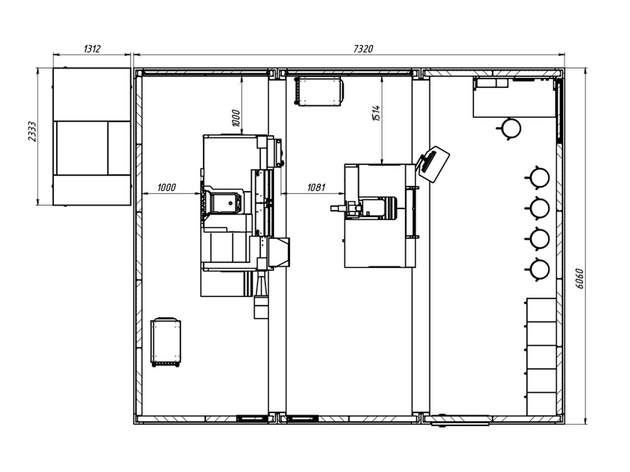
Навчальний модульний клас, зібраний із трьох модулів, створений спеціально для професійного навчання з встановленням важкого обладнання. Посилена рама, підготовлені місця під станки, ефективна вентиляція та окрема зовнішня зона під генератор — рішення розраховане на інтенсивну експлуатацію та гнучке використання.
| Тип конструкції | Швидкозбірний модуль |
| Кількість модулів | 3 |
| Кількість будівель | 1 |
| Планування | Виробниче приміщення |
| Зовнішнє оздоблення | Сендвіч-панелі Полімерний метал |
| Внутрішнє оздоблення | Сендвіч-панелі ЦСП Лінолеум |
| Утеплення | PIR |
| Інженерні мережі | Електромережа Вентиляція Кондиціонування |
| Комплектація | Меблювання Освітлення |
| Особливості проєкту | Посилена нижня рама Водовідведення в колонах |
| Додатково | Звукопоглинаючий зовнішній бокс під генератор |
| Термін реалізації проєкту | 20 робочих днів |
Навчальний модуль від ХМОДУЛЬ | X MODULE — це професійний учбовий простір, створений для роботи зі станками та обладнанням, що має високе навантаження на підлогу. Конструкція складається з трьох модулів, об’єднаних у єдиний простір площею 50 м².
Головна особливість — посилена нижня рама модульної конструкції, яка здатна витримувати значну вагу технічних станків, а також водовідведення, інтегроване в колони. Це забезпечує тривалу експлуатацію та зручність технічного обслуговування.
У просторі передбачено місця для учнів, меблі, робоче місце викладача та зони для монтажу обладнання. Поруч облаштовано зовнішній шумопоглинаючий майданчик під генератор, що дозволяє забезпечити автономну роботу у випадку перебоїв електропостачання.
Матеріали модуля — енергоефективні сендвіч-панелі PIR, зносостійкі внутрішні поверхні та сучасна інженерія — дозволяють використовувати модуль у будь-яку пору року й під високі навантаження.
Дивіться також
Зв’язатися з нами!
- Телефон+38 077 757 10 77
- Emailadmin@xmodule.com.ua
- Адреса
вул. Бульварно-Кудрявська, 22, літера А, кімната 429 місто Київ, 01054
- Графік роботиПн - Пт 9:00 - 18:00
















