ГоловнаКаталогОбороний секторМодульна казармаЖитловий розбірний модуль на 4 осіб
Житловий розбірний модуль на 4 осіб
Житловий розбірний модуль на 4 осіб
- Загальна площа15кв.м
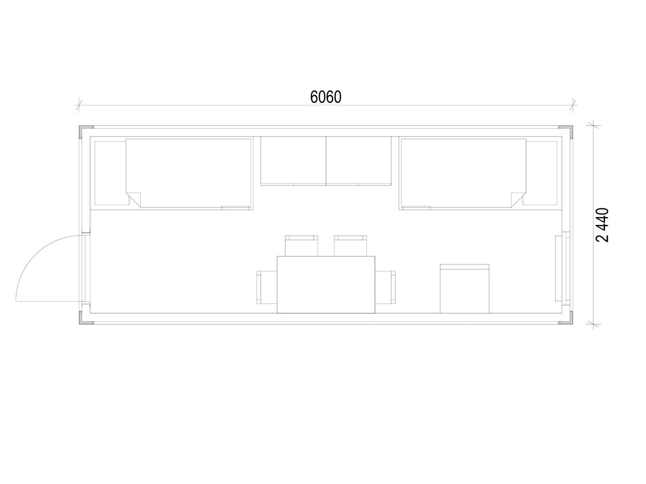
- Габаритні розміри (ДхШхВ)6000х2450х2600мм
- Висота стелі2250мм
- Артикул товару239
- Вартість від589 000,00 грн
Житловий розбірний модуль розроблений для проживання чотирьох осіб у форматі тимчасового житла. Конструкція виготовлена зі сендвіч-панелей і дозволяє швидке збирання та монтаж без складних підготовчих робіт. Модуль адаптований до експлуатації в умовах оборонного сектору.
| Тип конструкції | Збірно-розбірні будівлі |
| Кількість модулів | 1 |
| Кількість будівель | 1 |
| Планування | Єдиний простір |
| Зовнішнє оздоблення | Сендвіч-панелі Полімерний метал Епоксидний ґрунт Поліуретанова фарба |
| Внутрішнє оздоблення | Сендвіч-панелі ЦСП Лінолеум Полімерний метал |
| Утеплення | PIR |
| Інженерні мережі | Електромережа Вентиляція Кондиціонування |
| Комплектація | Меблювання |
| Особливості проєкту | Можливість регулювання висоти за допомогою спеціальних підйомів Трансформація у формат TransPak Автономність |
| Термін реалізації проєкту | 7 робочих днів |
Модуль виготовлений у форматі збірно-розбірної житлової конструкції зі сендвіч-панелей, що забезпечує швидке виготовлення, транспортування та монтаж. Завдяки регульованим підйомам по кутах можливо адаптувати висоту встановлення під умови конкретної ділянки.
Внутрішній простір укомплектований двома двоповерховими ліжками, столом, чотирма табуретками та подвійними металевими ящиками власного виробництва для зберігання речей. Використання сучасних енергоефективних матеріалів дозволяє раціонально використовувати електроенергію та забезпечує комфортні умови проживання.
Модуль може легко трансформуватися у формат TransPak, що спрощує логістику та зберігання. За сім робочих днів замовник отримує повністю готове рішення для проживання чотирьох осіб, яке відповідає поставленому технічному завданню.
Дивіться також
Зв’язатися з нами!
- Телефон+38 077 757 10 77
- Emailadmin@xmodule.com.ua
- Адреса
вул. Бульварно-Кудрявська, 22, літера А, кімната 429 місто Київ, 01054
- Графік роботиПн–Пт 09:00–18:00






















