ГоловнаКаталогОбороний секторШтабне та навчальне приміщенняНавчальний клас для особового складу
Навчальний клас для особового складу
Навчальний клас для особового складу
- Загальна площа170 м2
- Висота стелі2350мм
- Артикул товару:234
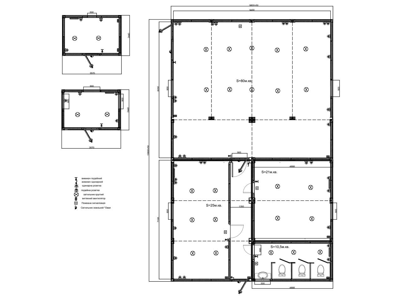
Багатофункціональний навчальний комплекс для особового складу, створений на базі мобільних модулів із можливістю швидкого розгортання, перепланування та масштабування. Простір розділений на навчальний зал, зону інструктора, групову зону та технічні приміщення. Модуль встановлюється на геогвинти, має приховану проводку та гнучкі мобільні перегородки.
| Тип конструкції | Швидкозбірний модуль |
| Кількість модулів | 14 |
| Кількість будівель | 1 |
| Планування | Навчальний зал 85 кв.м Інструкторська зона 25 кв.м Зона групової роботи 37,5 кв.м Санвузол + технічні 12,5 кв.м |
| Зовнішнє оздоблення | Сендвіч-панелі Полімерний метал Епоксидний ґрунт + поліуретанова фарба |
| Внутрішнє оздоблення | Сендвіч-панелі ЦСП Лінолеум |
| Утеплення | PIR |
| Інженерні мережі | Електромережа Вентиляція Водопостачання Водовідведення |
| Комплектація | Меблювання Технічне обладнання Інженерні системи Освітлення (внутрішнє + зовнішнє) |
| Особливості проєкту | Мобільні перегородки Прихована електропроводка Фундамент на геогвинтах Окремий модуль керування Окремий модуль спеціального призначення |
| Термін реалізації проєкту | 45 робочих днів |
Навчальний модульний комплекс від ХМОДУЛЬ — це повністю мобільний, масштабований та трансформований простір для підготовки особового складу. Конфігурація включає 14 модулів, об’єднаних у єдину конструкцію на геовинтах з прихованою електропроводкою та можливістю переобладнання під різні сценарії навчання.
Головний навчальний зал площею 85 м² розрахований на 25–30 людей та оснащений інтерактивною панеллю, мультимедійним проєктором, трансформованими столами та мобільними стільцями.
Інструкторська зона (25 м²) працює як автономне приміщення або як інтеграція зі спільним простором, залежно від формату занять.
Зона групової роботи площею 37,5 м² підходить для командних завдань, тренінгів і брифінгів. Меблі мобільні та дозволяють за хвилини змінити конфігурацію.
Комплекс містить санвузол і технічний блок, а також зовнішні та внутрішні мобільні перегородки, що забезпечують максимальну гнучкість використання. Це рішення повністю готове до експлуатації та легко масштабується.
Дивіться також
Зв’язатися з нами!
- Телефон+38 077 757 10 77
- Emailadmin@xmodule.com.ua
- Адреса
вул. Бульварно-Кудрявська, 22, літера А, кімната 429 місто Київ, 01054
- Графік роботиПн - Пт 9:00 - 18:00




















