ГоловнаКаталогЖитлові модуліВагончик житловийЗбірний житловий вагончик
Збірний житловий вагончик
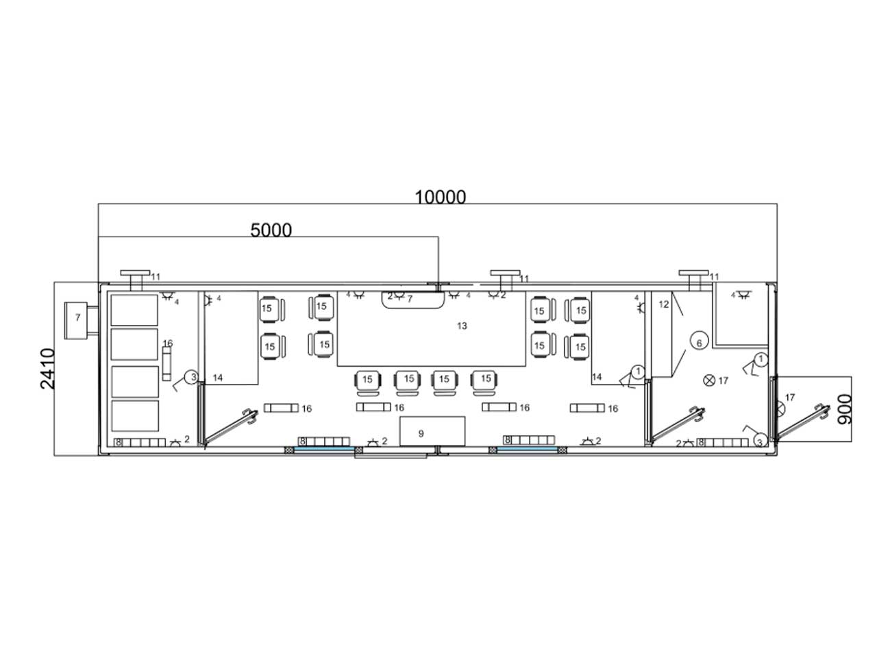
Збірний житловий вагончик
- Загальна площа30 м2
- Габаритні розміри (ДхШхВ)10000х2410х2600мм
- Висота стелі2250мм
- Артикул товару:209
Житловий модуль, сформований шляхом з’єднання двох окремих конструкцій у єдину будівлю площею 30 кв.м. Планування включає дві спальні кімнати та передпокій, передбачено місце для розташування генератора поза межами модулів. Конструкція швидкозведена, утеплена, оснащена електромережею, вентиляцією та кондиціонером. Зовнішнє оздоблення виконано з металу та профнастилу з поліуретановим фарбуванням. Модуль призначений для комфортного проживання або тимчасового розміщення персоналу.
| Тип конструкції | Швидкозбірний модуль |
| Кількість модулів | 2 |
| Кількість будівель | 1 |
| Планування | 3 окремі кімнати |
| Зовнішнє оздоблення | Метал Профнастил Епоксидний ґрунт Поліуретанова фарба |
| Внутрішнє оздоблення | ЛДСП ЦСП Лінолеум |
| Утеплення | Мінеральна вата |
| Інженерні мережі | Електромережа Вентиляція Кондиціювання |
| Комплектація | Меблювання Технічне обладнання Освітлення Інженерні системи |
| Особливості проєкту | З’єднання двох модулів в одну будівлю Генераторний майданчик поза межами модуля |
| Термін реалізації проєкту | 20 роб.днів |
Житловий модуль розроблено як швидкозведену конструкцію, що поєднує два окремих модулі в одну функціональну будівлю. Такий формат дозволив отримати компактне житлове рішення з двома спальними кімнатами та передпокоєм.
Каркас обладнання адаптований для монтажу на місці, а конструкція витримує експлуатацію в різних географічних та кліматичних умовах. Внутрішні матеріали забезпечують теплоізоляцію й довговічність, а зовнішнє оздоблення металом та профнастилом формує високу стійкість до зношення. Кондиціонер, вентиляція та продумане розміщення генератора підсилюють автономність будівлі.
Проєкт цього житлового збірно-розбірного модуля від X MODULE дозволяє масштабувати житлові рішення шляхом об'єднання модулів і створювати компактні житлові системи з продуманою інфраструктурою.
Дивіться також
Зв’язатися з нами!
- Телефон+38 077 757 10 77
- Emailadmin@xmodule.com.ua
- Адреса
вул. Бульварно-Кудрявська, 22, літера А, кімната 429 місто Київ, 01054
- Графік роботиПн - Пт 9:00 - 18:00











