ГоловнаКаталогСанітарно-побутові модуліМодульна кухня, їдальняМодульна їдальня для персоналу
Модульна їдальня для персоналу
Модульна їдальня для персоналу
- Загальна площа60 м2
- Висота стелі2200мм
- Артикул товару:224
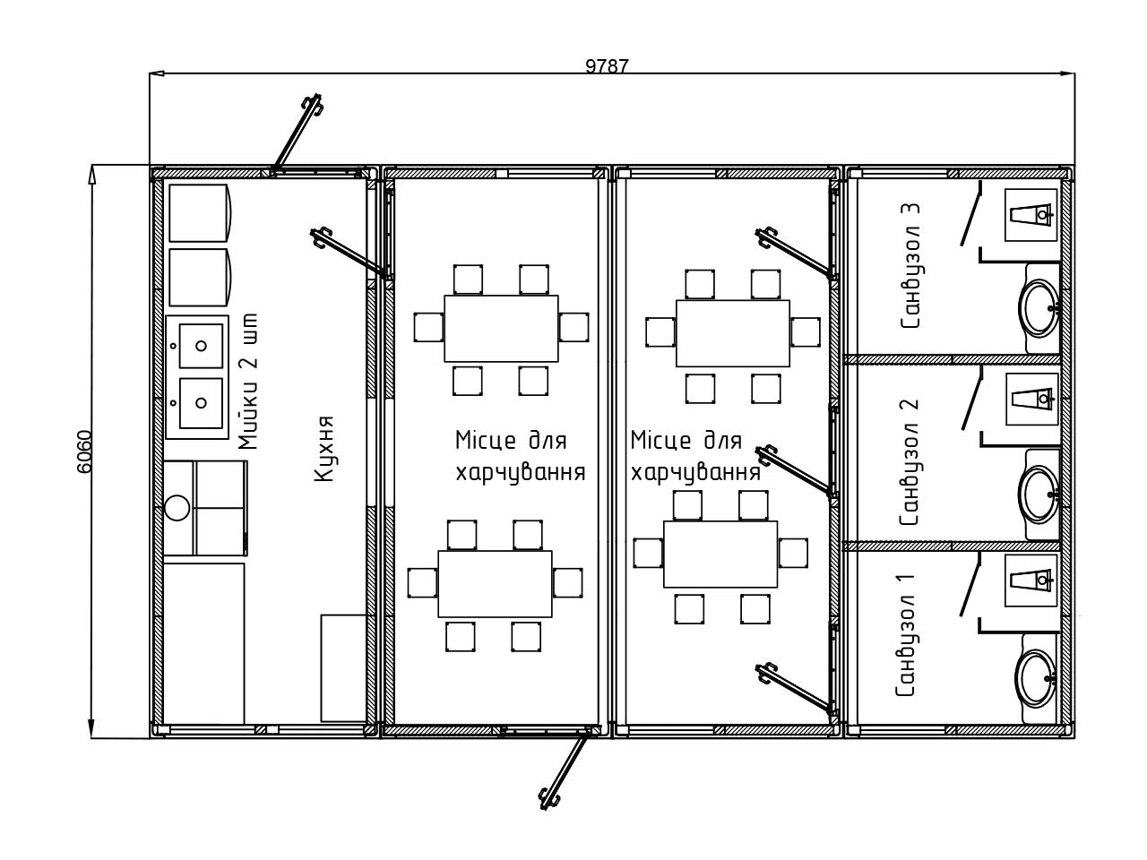
Модульна їдальня для персоналу, зібрана з чотирьох швидкозведених модулів, включає кухню, простір для харчування та три санвузли. Конструкція адаптується до будь-яких географічних умов, може працювати автономно після монтажу та легко переміщується на інші локації у разі потреби.
| Тип конструкції | Швидкозбірний модуль |
| Кількість модулів | 4 |
| Кількість будівель | 1 |
| Планування | Кухня Їдальна зона Санвузли |
| Зовнішнє оздоблення | Сендвіч-панелі Полімерний метал Епоксидний ґрунт + поліуретанова фарба |
| Внутрішнє оздоблення | ЦСП Лінолеум Сендвіч-панелі Полімерний метал |
| Утеплення | PIR |
| Інженерні мережі | Електромережа Вентиляція Водопостачання Водовідведення |
| Комплектація | Меблювання Технічне обладнання Освітлення Сантехніка |
| Особливості проєкту | Адаптація до географічних умов Автономність після монтажу |
| Термін реалізації проєкту | 15 робочих днів |
Модульна їдальня площею 60 м² виконана на базі чотирьох модулів і включає кухню, простір для харчування та три окремі санвузли.
Конструкція розроблена з урахуванням можливості автономної роботи після монтажу, а також адаптації до різних географічних умов. Для внутрішнього оздоблення використані сендвіч-панелі з PIR-утепленням, ЦСП, лінолеум і полімерний метал — матеріали, що забезпечують зносостійкість і легкість догляду.
Приміщення повністю укомплектоване меблями та сантехнікою, оснащене електромережею й вентиляцією. Завдяки розбірній конструкції модуль легко переноситься на нову локацію, що робить його оптимальним рішенням для промислових, будівельних та сервісних об’єктів.
Дивіться також
Зв’язатися з нами!
- Телефон+38 077 757 10 77
- Emailadmin@xmodule.com.ua
- Адреса
вул. Бульварно-Кудрявська, 22, літера А, кімната 429 місто Київ, 01054
- Графік роботиПн - Пт 9:00 - 18:00










