ГоловнаКаталогСанітарно-побутові модуліСанітарний блокМобільний санітарно-гігієнічний блок для будівельників
Мобільний санітарно-гігієнічний блок для будівельників
Мобільний санітарно-гігієнічний блок для будівельників
- Загальна площа18 м2
- Габаритні розміри (ДхШхВ)4900х6050х2800мм
- Висота стелі2250мм
- Артикул товару:215
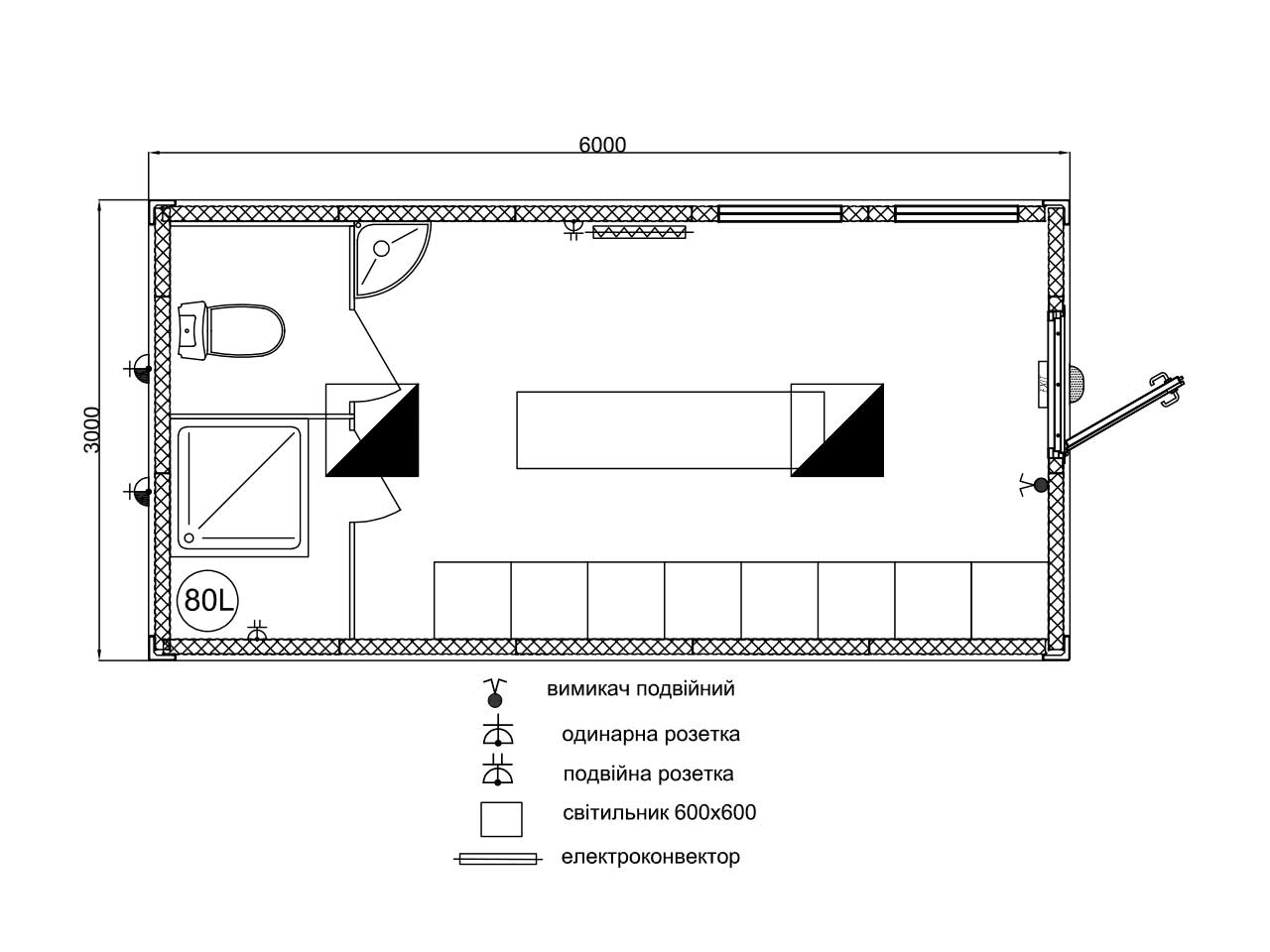
Мобільний сантехнічний модуль для будівельних майданчиків, що включає душову кабіну, туалет, бойлер, умивальник та вбудовані шафи для одягу. Конструкція трохи ширша за стандартний модуль, що забезпечує комфортне використання кількома працівниками одночасно. Дах виконано з полімерного листа з подвійним фальцем, а у колонах інтегровано прихований відвід дощової води. Модуль повністю готовий до експлуатації, з підведеними комунікаціями, вентиляцією та внутрішнім захистом від вологи.
| Тип конструкції | Швидкозбірний модуль |
| Кількість модулів | 2 |
| Кількість будівель | 1 |
| Планування | Душова Туалет Роздягальня |
| Зовнішнє оздоблення | Сендвіч-панелі Полімерний метал Епоксидний ґрунт Поліуретанова фарба |
| Внутрішнє оздоблення | Сендвіч-панелі (PIR) ЦСП Лінолеум Нержавіюча сталь Полімерний метал |
| Утеплення | PIR |
| Інженерні мережі | Електромережа (прихований монтаж) Водопостачання Водовідведення Вентиляція |
| Комплектація | Меблювання Технічне обладнання Сантехніка Інженерні системи |
| Особливості проєкту | Збільшена ширина Подвійний фальцевий дах Прихований водовідвід у колонах |
| Додатково | Оздоблення «мокрих» зон нержавійкою |
| Термін реалізації проєкту | 20 робочих днів |
Сантехнічний модуль розроблений для використання на будівельних майданчиках та у місцях із підвищеними вимогами до гігієни та автономності. Конструкція виконана з сендвіч-панелей з PIR-утепленням, що забезпечує стабільний температурний режим та довговічність.
Модуль трохи ширший за стандартний, що дозволило розмістити шафи, душовий бокс, туалет та роздягальню, не втрачаючи ергономіки. Дах із полімерного листа з подвійним фальцем гарантує герметичність, а прихований відвід води, інтегрований у колони, забезпечує правильний дренаж. Всі електричні комунікації виконано прихованим методом, що підвищує безпеку користування у вологих умовах.
Проєкт демонструє здатність ХМОДУЛЬ реалізовувати спеціалізовані модулі з підвищеними вимогами до вологозахисту та експлуатаційної безпеки.
Дивіться також
Зв’язатися з нами!
- Телефон+38 077 757 10 77
- Emailadmin@xmodule.com.ua
- Адреса
вул. Бульварно-Кудрявська, 22, літера А, кімната 429 місто Київ, 01054
- Графік роботиПн - Пт 9:00 - 18:00










