ГоловнаКаталогГромадська інфраструктураСлужбове приміщенняВідділення поліції
Відділення поліції
Відділення поліції
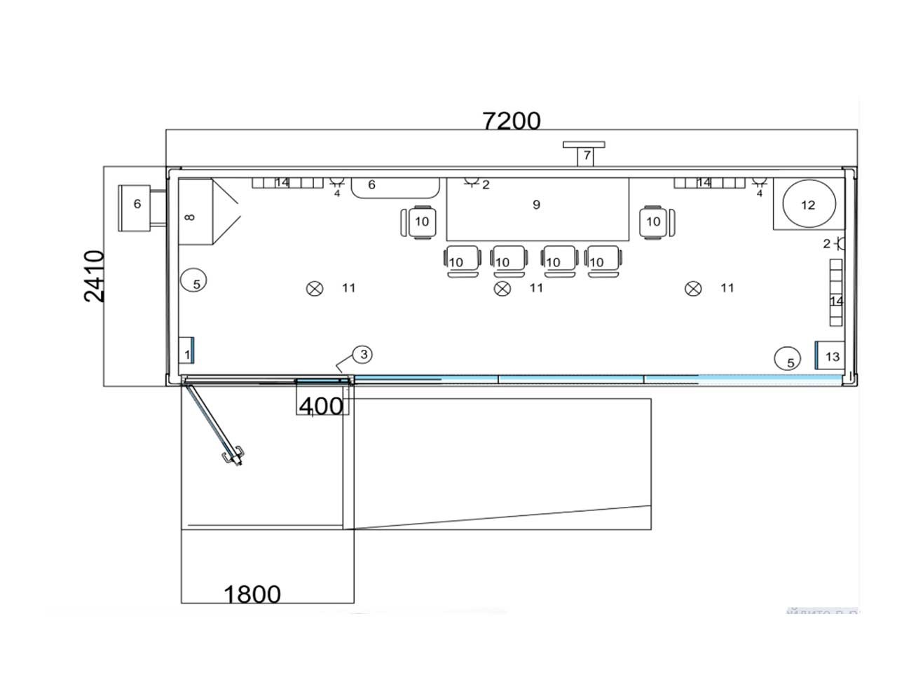
- Загальна площа17 м2
- Габаритні розміри (ДхШхВ)7200х2410х2300мм
- Висота стелі2300мм
- Артикул товару:109
Мобільний пост поліції від ХМОДУЛЬ — це компактна, автономна будівля, розроблена для оперативного розгортання службових точок у будь-якому регіоні. Конструкція оснащена санвузлом, приймальною кімнатою та панорамними вікнами, що забезпечує відкритість простору та зручність.
| Тип конструкції | Цільнозварна модульна будівля |
| Кількість модулів | 1 |
| Планування | Приймальна зона, санвузол |
| Зовнішнє оздоблення | Епоксидний ґрунт Поліуретанова фарба |
| Внутрішнє оздоблення | ЛДСП ЦСП Профнастил ПВХ-мембрана |
| Утеплення | Мінеральна вата |
| Інженерні мережі | Електромережа Водопостачання Водовідведення Вентиляція Кондиціонування |
| Комплектація | Меблювання Технічне обладнання Сантехніка Освітлення Сонячна система живлення |
| Особливості проєкту | Панорамне скління Пандус Автономність |
| Додатково | Інклюзивний доступ |
| Термін реалізації проєкту | 20 робочих днів |
Компанія ХМОДУЛЬ реалізувала модульний пост поліції, створений відповідно до вимог замовника. Конструкція оснащена великими панорамними вікнами, що забезпечують природне освітлення, а вбудована сонячна електростанція дозволяє працювати автономно, незалежно від зовнішніх мереж.
Для зручності та інклюзивності пост обладнаний пандусами, що забезпечують доступ усім категоріям громадян.
Модуль спроєктований у форматі open space, що створює комфортні умови як для роботи персоналу, так і для прийому відвідувачів. Завдяки панорамному огляду працівники можуть контролювати простір навколо без потреби залишати робоче місце.
Будівлю можна встановити на будь-якій ділянці — без фундаменту та капітальних робіт, що робить її ідеальним рішенням для виїзних прийомів громадян і швидкого розгортання службових точок у різних регіонах.
Компанія X MODULE реалізує практичні рішення для державного сектору. Мобільний пост поліції — приклад ефективної, сучасної та безпечної інфраструктури, яку можна розмістити будь-де: від міського простору до віддалених громад. Відкритість, енергоефективність і комфорт — саме ці принципи лежать в основі подібних проєктів.
Дивіться також
Зв’язатися з нами!
- Телефон+38 077 757 10 77
- Emailadmin@xmodule.com.ua
- Адреса
вул. Бульварно-Кудрявська, 22, літера А, кімната 429 місто Київ, 01054
- Графік роботиПн - Пт 9:00 - 18:00







