ГоловнаКаталогМедичні модуліМодульна лікарняМодульне прийомне відділення лікарні
Модульне прийомне відділення лікарні
Модульне прийомне відділення лікарні
- Загальна площа140 м2
- Висота стелі2200мм
- Артикул товару:220
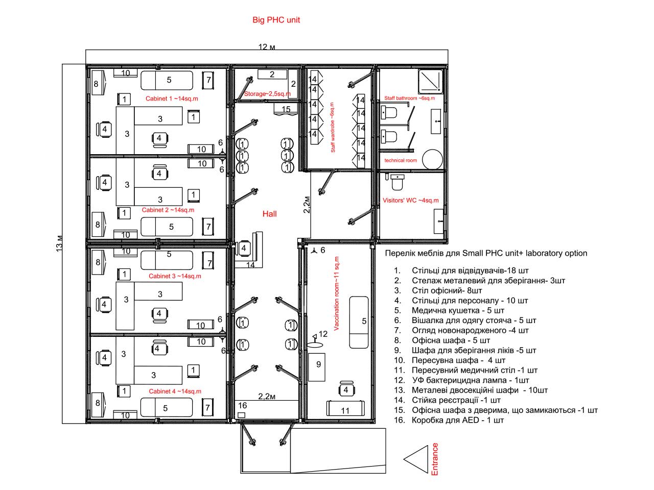
Швидкозведений модульний комплекс для прийому пацієнтів, організований відповідно до вимог медичного зонування та інклюзивності. Будівля автономна, придатна для роботи як від генератора, так і від міської електромережі. Конструкція адаптується до різних поверхонь та включає всі необхідні приміщення для лікарів, персоналу та відвідувачів.
| Тип будівлі | Швидкозведений модуль |
| Кількість модулів | 9 |
| Площа | 140 м² |
| Поверховість | 1 |
| Комплектація | 4 кабінета лікарів; процедурна; санвузол персоналу; санвузол відвідувачів; хол; комора; роздягальня |
| Особливості | автономність; інклюзивність; встановлення на бетон/асфальт/геошурупи |
| Матеріали (внутрішні) | Сендвіч-панелі, PIR, ЦСП, лінолеум, полімерний метал |
| Інженерія | Електромережа |
| Водопостачання / водовідведення | Так / Так |
| Вентиляція | Так |
| Кондиціонер | Так |
| Тепла підлога | Ні |
| Матеріали (зовнішні) | Сендвіч-панелі, полімерний метал |
| Фарбування | Епоксидний ґрунт, поліуретанова фарба |
| Зовнішнє освітлення | Так |
| Сонячні панелі | Ні |
| Меблювання | Так |
| Доставка | Так |
| Монтаж | Так |
| Додаткові роботи | Монтаж на геошурупи |
| Термін реалізації | 40 робочих днів |
Модульна лікарня — приймальне відділення площею 140 м², зібрана з дев’яти швидкозведених модулів. Конструкція виконана на базі сендвіч-панелей з PIR-утепленням, забезпечуючи високий рівень енергоефективності, міцності та безпечності.
Планування включає чотири повноцінних кабінети лікарів, процедурну, хол, санвузли для персоналу та відвідувачів, роздягальню та комору. Передбачене медичне зонування, правильні проходи, можливість розділення потоків.
Комплекс автономний, здатний працювати як від генератора, так і від міської мережі. Інклюзивний пандус забезпечує безбар’єрний доступ для всіх категорій пацієнтів.
Будівлю можна встановити на бетон, асфальт або геошурупи, що дозволяє швидко розгортати її в будь-якому регіоні. Внутрішнє та зовнішнє оздоблення виконано з легких, зносостійких і сертифікованих матеріалів.
Дивіться також
Зв’язатися з нами!
- Телефон+38 077 757 10 77
- Emailadmin@xmodule.com.ua
- Адреса
вул. Бульварно-Кудрявська, 22, літера А, кімната 429 місто Київ, 01054
- Графік роботиПн - Пт 9:00 - 18:00











