Навчальний простір
Навчальний простір
Навчальний клас для особового складу — це масштабний модульний комплекс, розроблений X MODULE для Міністерства оборони України. Будівля створена як багатофункціональний навчальний простір із можливістю швидкого розгортання, перепланування та адаптації під різні формати підготовки.
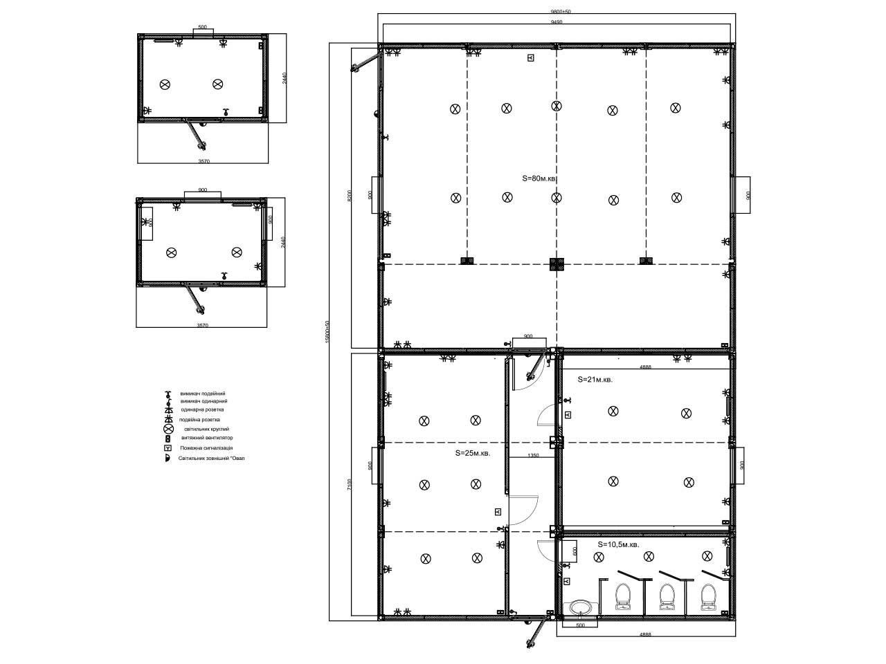
Проєкт об’єднує 14 модулів у один навчальний корпус, доповнений спецмодулем та модулем керування установками. Це сучасна швидкозведена конструкція з великим навчальним залом, інструкторською, зоною групової роботи та санітарним блоком — повністю готова до навчального процесу та інтенсивної експлуатації.
| Тип конструкції | Збірно-розбірний модуль |
| Призначення | Навчання особового складу |
| Загальна площа | 170 м² |
| Кількість модулів | 14 + спецмодуль + модуль управління |
| Висота стелі | 2,35 м |
| Планування | Основний зал 85 м², інструкторська 25 м², групова зона 37,5 м², санвузол і технічні приміщення |
| Фундамент | Геовинти |
| Інженерія | Електрика, водопостачання, каналізація, вентиляція |
| Кондиціонер | Ні |
| Матеріали | Метал, фарбування, брендування |
| Особливості | Схована проводка, мобільні перегородки для зміни планувань |
| Меблювання | Так (столи, стільці, шафи) |
| Доставка | Так |
| Монтаж | Так |
| Термін реалізації | 45 календарних днів |
Навчальний модульний комплекс у Броварах створений для потреб Міністерства оборони України. Це повністю мобільний, масштабований та функціональний навчальний центр, що базується на сучасних модульних будівлях X MODULE.
Комплекс об’єднує 14 модулів у єдину швидкозведену будівлю з великим навчальним залом площею 85 м², інструкторською зоною, простором для групових занять та санвузлом. Мобільні меблі та перегородки дозволяють швидко змінювати конфігурацію простору — від аудиторного формату до командних тренувань.
Конструкція встановлена на геовинтах, що забезпечує швидкий монтаж і стабільність на складних ґрунтах. Схована електропроводка робить простір безпечним і більш естетичним, а система вентиляції забезпечує комфорт під час тривалих занять.
Це показовий приклад того, як модульні конструкції, швидкозведені будівлі та освітні модулі можуть створювати ефективні навчальні умови навіть у польових або тимчасових локаціях.
Дивіться також
Зв’язатися з нами!
Залиште заявку — ми зателефонуємо вам найближчим часом.
Працюємо щодня з 09:00 до 18:00




























